0
Skip to Content
Home
Services
Contact
About
Open Menu
Close Menu
Home
Services
Contact
About
Open Menu
Close Menu
Home
Services
Contact
About
Previous
Previous
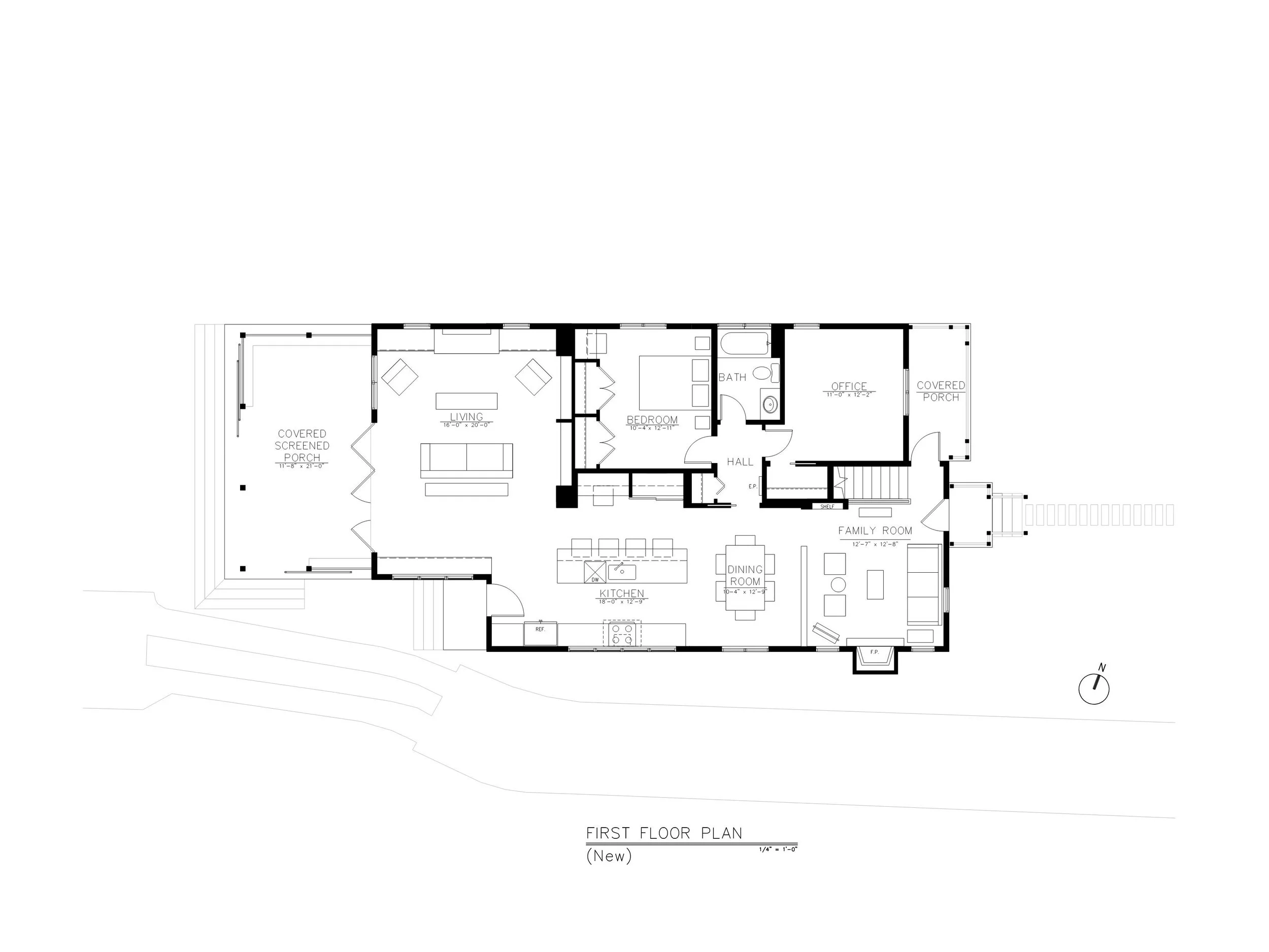
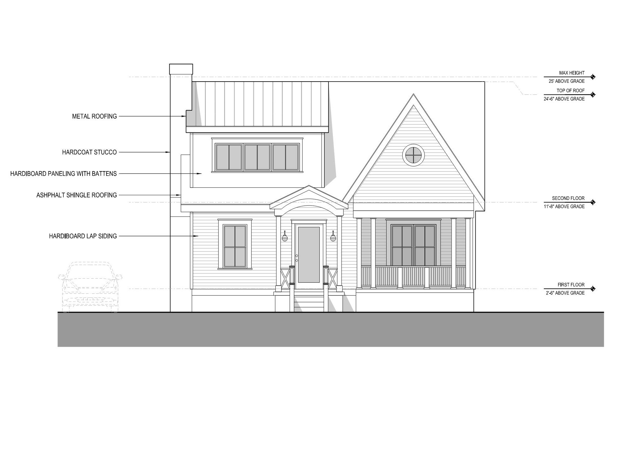
Historic Cabbagetown #2